Не упусти свой шанс! Последние акции от застройщиков  ▼

Продается 5-комнатная квартира, Неопалимовский 1-й пер., 8

510 000 000 Р

Неопалимовский 1-й пер.8

Дата публикации: 24 июля 2024

Дата обновления: 27 октября 2025

Телефон: 
Показать телефон

+7 (495) 104-56-15

Агентство:  ООО Метриум

Название: ЖК "Венский дом"

От застройщика: 0 квартир в продаже

Этаж: 9 / 22

Общая: 363 м2

Жилая: не указано

Кухня: не указано

Комнаты: не указано

Балкон/лоджия: балкон

Лифт: не указано

Окна: не указано

Санузел: четыре санузла

Мусоропровод: не указано

Состояние квартиры: первичная отделка

Тип дома: кирпичный

Год постройки: 2019

Территория: огороженная

Парковка: не указано

Статус сделки: продажа

Сделка: прямая продажа

Собственность: не указано

Основание права собственности: не указано

Описание

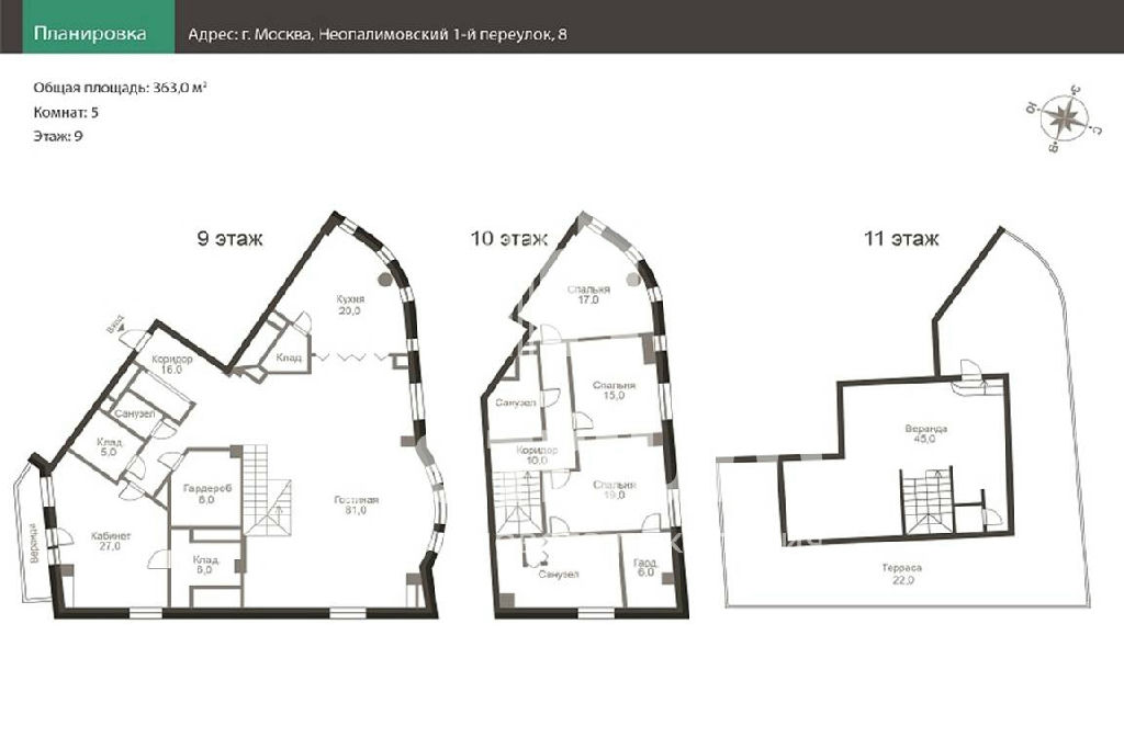
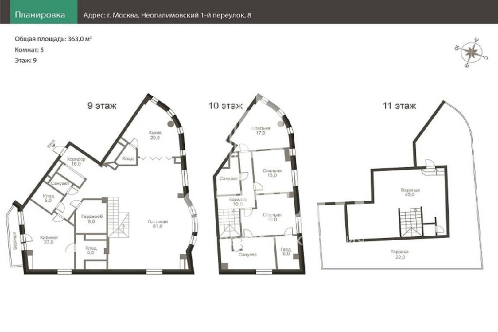
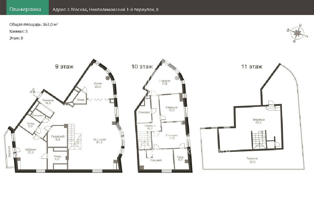
ID 22273 Предлагается 3-уровневый пентхаус в жилом комплексе Венский дом, расположенный в историческом центре Москвы.
Интерьер выполнен по эксклюзивному авторскому проекту. В отделке использованы качественные натуральные материалы.
Функциональная планировка 1-го уровня включает в себя кухню, гостиную-столовую, кабинет с балконом, постирочную, гардеробную комнату и гостевой
санузел в прихожей. На 2-м уровне расположены мастер-спальня со своими ванной и гардеробной комнатами, две спальни с общей ванной комнатой. На 3-м уровне зона отдыха со своей кухней, выход на трехстороннюю террасу с зоной барбекю, с которой открываются роскошные виды на исторический центр Москвы.
В комплексе огороженная территория с ландшафтным дизайном, подземный паркинг, круглосуточная охрана и видеонаблюдение.
Удобная транспортная доступность и развитая инфраструктура района сделают проживание в квартире еще более комфортным.

Возможно вы искали:
Купить квартиру, элитная квартира, элитная недвижимость, видовые квартиры, Хамовники, Остоженка, Пречистенка, Золотая миля

Квартира на карте

ПанорамыКарта
Спецпредложения
Добавить объявление